Vaartveld 9

4704 SE Roosendaal Huur

Kenmerken

Overdracht

Huurprijs
EUR 155.000,- p/j
Status
beschikbaar
Aanvaarding
in overleg

Bouw

Hoofdbestemming
bedrijfsruimte
Bouwjaar
2026
Bouwperiode
vanaf 2021 tm 2030
In aanbouw
ja

Bedrijfshal

Oppervlakte
1.077 m²
In units vanaf
382 m²
Vrije hoogte
600 cm
Voorzieningen
Lichtstraten, overheaddeuren, krachtstroom, betonvloer

Kantoorruimte

Oppervlakte
394 m²
Voorzieningen
Inbouwarmaturen, te openen ramen
Verdiepingen
1

Terrein

Buitenruimte

Ligging
Bedrijventerrein

Omschrijving

Op een strategische locatie op bedrijventerrein ‘Borchwerf I’ in Roosendaal wordt momenteel een representatief en modern nieuwbouw bedrijfscomplex gerealiseerd. Wij mogen u het object, geheel of gedeeltelijk, namens onze opdrachtgever voor de verhuur aanbieden. Het perceel beschikt momenteel nog over een grootverbruikaansluiting met een gecontracteerd vermogen van 114 kW, waardoor dit zich object leent voor meerdere gebruiksdoeleinden.

Er zijn een drietal huuropties:

Optie I: huur van het gehele complex
Optie II: huur linkerdeel
Optie III: huur rechterdeel

De aangeboden ruimten worden in onderling overleg met de verhuurder compleet opgeleverd.

Interesse? Wij leiden u graag rond tijdens een bezichtiging ter plaatse.

Locatie
Het bedrijventerrein ‘Borchwerf I’ in Roosendaal kent een strategische ligging in West-Brabant ten opzichte van de wereldhavens Rotterdam en Antwerpen en de luchthavens Zaventem (Brussel).

Het bedrijventerrein wordt gekenmerkt door een diversiteit aan bedrijvigheid en een kwalitatieve omgeving. De meeste gebouwen zijn relatief recent ontwikkeld en gebouwd.

Door de ligging langs de Rijksweg A17 (Roosendaal/Moerdijk) is deze locatie uitstekend bereikbaar per auto en vrachtverkeer.

Bestemming
Thans is van toepassing het vigerende bestemmingsplan ‘Borchwerf I’ dat werd vastgesteld bij Raadsbesluit van 31 oktober 2012 waaruit blijkt dat de onderhavige locatie de bestemming ‘Bedrijventerrein - 3’ heeft.

De aangewezen gronden zijn bestemd voor industriële en ambachtelijke bedrijven voor zover deze voorkomen in categorie 3.1, 3.2 en 4.1 van de Staat van Bedrijfsactiviteiten, alsmede groothandelsbedrijven.

Kadaster
Volgens de Rijksdienst voor het Kadaster en de openbare registers in Nederland, blijkt uit de kadastrale registratie van het terrein plaatselijk bekend als Vaartveld 9 te 4704 SE het navolgende:
 
Gemeente: ROOSENDAAL EN NISPEN
Sectie: A
Nummer: 4572 & 4643
Grootte: 1.858 m2 & 121 m2
Situatie: Volledig eigendom

Oppervlakte
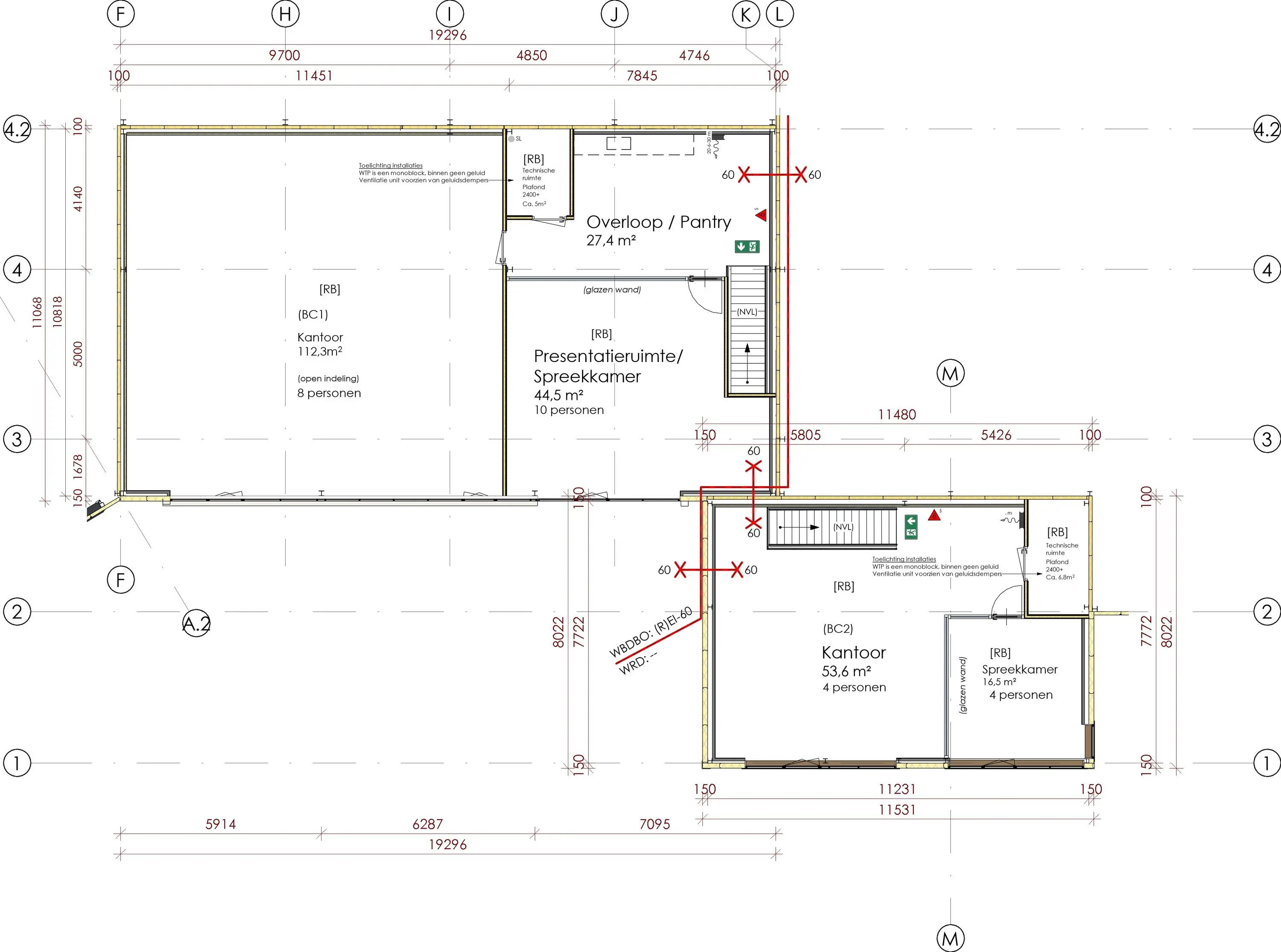
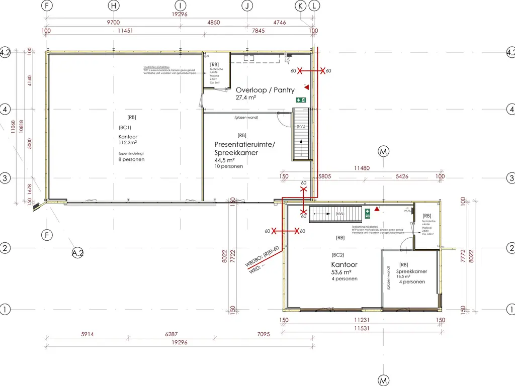
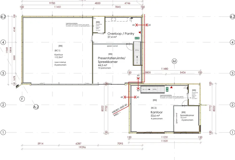
Het object heeft een totale verhuurbare vloeroppervlakte van ca. 1.492 m2. Voor de verhuur kunnen wij de navolgende opties aanbieden:

Optie I (geheel)
- Bedrijfsruimte ca. 1.077 m2
- Kantoorruimte (bg). ca. 140 m2
- Kantoorruimte (1e). ca. 254 m2
- Secundaire ruimte. ca.  21 m2

Optie II (linkerdeel)
- Bedrijfsruimte ca. 695 m2
- Kantoorruimte (bg). ca.  72 m2
- Kantoorruimte (1e). ca. 184 m2
- Secundaire ruimte. ca.   11 m2

Optie III (rechterdeel)
- Bedrijfsruimte. ca. 382 m2
- Kantoorruimte (bg). ca. 68 m2
- Kantoorruimte (1e). ca.  70 m2
- Secundaire ruimte. ca.  10 m2

Opleveringsniveau
Het in aanbouw zijnde object wordt turnkey opgeleverd met de navolgende voorzieningen:
- Bedrijfsruimte;
- Monolithisch afgewerkte betonvloer;
- Elektrische overheaddeur (ca. 4 m1 breed en ca. 4,6 m1 hoog);
- Vrije hoogte van ca. 6 m1;
- Voorbereid op vloerverwarming.

Kantoorruimte
- Pvc vloerafwerking;
- Gesausde wandafwerking;
- Indeling met glazen wanden;
- Systeemplafond met ledverlichting;
- Verwarmen en verkoelen middels airconditioning;
- Vloerverwarming middels warmtepomp;
- Sanitaire voorzieningen;
- Uitgebreide pantry v.v. koelkast en magnetron, gootsteen, mengkraan, onder- en bovenkasten;
- Te openen ramen.

Algemeen
- Brandblusvoorzieningen;
- Glasvezel;
- 17 parkeerplaatsen;
- Ca. 60 zonnepanelen.

Voorwaarden en condities
Huurprijs
Optie I: EUR 155.000,- per jaar, te vermeerderen met BTW. In de huurprijs zijn 17 parkeerplaatsen inbegrepen.
Optie II: EUR 97.500,- per jaar, te vermeerderen met BTW. In de huurprijs zijn 10 parkeerplaatsen inbegrepen.
Optie III: EUR 57.500,- per jaar, te vermeerderen met BTW. In de huurprijs zijn 7 parkeerplaatsen inbegrepen.

Servicekosten
In overleg.

Nutsvoorzieningen
Huurder zal zelf zorgdragen voor de levering van gas, water en elektriciteit inclusief het vastrecht en de diensten daaromheen alsmede voor het (wettelijk verplichte) periodieke onderhoud. Huurder is zelf verantwoordelijk voor de opzegging en beëindiging van de leveringscontracten bij einde van de huurovereenkomst.

Betalingsverplichting
Per maand of kwartaal vooruit.

Huurtermijn
Een huurtermijn van 5 jaar, telkens te verlengen met periodes van 5 jaar.

Zekerheidsstelling
Een waarborgsom of bankgarantie ter grootte van 3 maanden huur inclusief servicekosten en BTW.

Aanvaarding
In overleg.

Indexering
Jaarlijkse indexering voor het eerst één jaar na huuringangsdatum op basis van de Consumenten Prijs Index (CPI) Alle Huishoudens (2015=100) samengesteld door het Centraal Bureau voor de Statistiek.

Contract
Standaard ROZ contract, model 2025.

BTW
Indien huurder niet aan het 90% criterium voldoet, zal er van rechtswege sprake zijn van omzetbelasting vrijgestelde verhuur. Alsdan wordt de overeengekomen kale huurprijs exclusief omzetbelasting, zodanig verhoogd dat het voor verhuurder ontstane financiële nadeel wordt gecompenseerd.

Overige
Alle overige voorwaarden zijn nader overeen te komen.

Disclaimer
Alle door EQ Real Estate B.V. verstrekte informatie is geheel vrijblijvend en uitsluitend bestemd voor geadresseerde. Alle gegevens zijn met zorg samengesteld en uit ons inziens betrouwbare bron afkomstig. Ten aanzien van de juistheid ervan kunnen wij echter geen aansprakelijkheid aanvaarden.
Lees meer

Kaart

Brochure(s)

Vraag meer informatie aan