Nijverheidsweg 16

4854 MT Bavel Huur

Kenmerken

Overdracht

Huurprijs
EUR 1.875,- p/m
Status
beschikbaar
Aanvaarding
in overleg

Bouw

Hoofdbestemming
bedrijfsruimte
Bouwperiode
vanaf 1981 tm 1990

Bedrijfshal

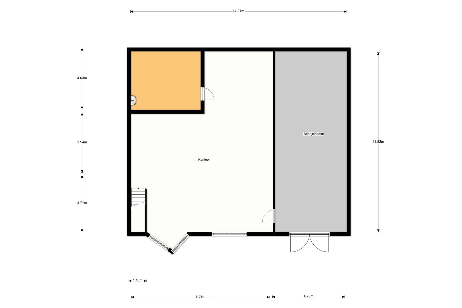
Oppervlakte
130 m²
Voorzieningen
Overheaddeuren, betonvloer

Kantoorruimte

Oppervlakte
90 m²
Luchtbehandelingen
Airco
Verdiepingen
2

Terrein

Buitenruimte

Ligging
Bedrijventerrein

Parkeergelegenheid

Faciliteiten
Parkeren op eigen terrein

Omschrijving

Op bedrijventerrein ‘De Bunder’ in Bavel komt een representatief bedrijfsobject beschikbaar voor verhuur. Het object is strategisch gelegen nabij de zuidelijke rondweg met directe verbinding met de A16 en A27.

Het bedrijfsobject bestaat uit circa 130 m2 bedrijfsruimte op de begane grond, circa 90 m2 kantoorruimte en circa 74 m2 opslagruimte op de verdieping. Tevens behoren er drie parkeerplaatsen op eigen terrein tot het gehuurde. Op het bedrijventerrein zijn er voldoende mogelijkheden tot openbaar parkeren.

Aanvaarding in overleg. Interesse? Wij leiden je graag vrijblijvend rond tijdens een bezichtiging ter plaatse.

Locatie
Het object is gelegen op bedrijventerrein ‘de Bunder’ in Bavel. Het terrein is uitermate strategisch gelegen nabij de Zuidelijke Rondweg waarmee de rijkswegen A16 (Rotterdam/Breda/Antwerpen) en A27 (Utrecht/Breda) binnen enkele autominuten zijn te bereiken.

Bestemmingsplan
Thans is van toepassing het vigerende bestemmingsplan ‘Bavel’ dat werd vastgesteld bij Raadsbesluit van 26 november 2014 waaruit blijkt dat de onderhavige locatie de bestemming ‘Bedrijventerrein’ heeft.
 
De aangewezen gronden zijn bestemd voor bedrijven in de milieucategorie 1 en 2, zoals opgenomen in de bijlage bij de planregels.

Kadaster
Volgens de Rijksdienst voor het Kadaster en de openbare registers in Nederland, blijkt uit de kadastrale registratie van het terrein plaatselijk bekend als Nijverheidsweg 16 te 4854 MT Bavel het navolgende:
 
Gemeente: NIEUW-GINNEKEN
Sectie: M
Nummer: 721
Grootte: 244 m2

Opleveringsniveau
Het object wordt in de huidige staat opgeleverd met de navolgende voorzieningen:
 
Bedrijfsruimte
- Betonvloer;
- Strakke wandafwerking;
- Elektrische overheaddeur;
- Loopdeur naar entree;
- Diverse aansluitingen voor elektra;
- Verlichting.
 
Kantoorruimte
- Entree v.v. pantry, sanitaire voorziening en trapopgang naar eerste verdieping;
- Tapijttegel vloerafwerking;
- Strakke wandafwerking;
- Systeemplafond met ledverlichting;
- Airconditioning (verwarmen en koelen);
- Radiatoren;
- Diverse aansluitingen voor elektra en data.

Opslagruimte
- Tapijttegels vloerafwerking;
- Wasbak v.v. mengkraan;
- Radiator;
- Verlichting;
- Elektrapunt.

VOORWAARDEN EN CONDITIES

Huurprijs
EUR 1.875,- per maand, te vermeerderen met BTW. In de huurprijs zijn drie parkeerplaatsen op eigen terrein inbegrepen.

Servicekosten
Het voorschot op de servicekosten bedraagt EUR 75,- per maand, te vermeerderen met BTW, ten behoeve van de navolgende levering van zaken en diensten:
- Periodiek onderhoud en keuring van de overheaddeur;
- Periodiek onderhoud en keuring van de cv-installatie;
- Periodiek onderhoud van buitenterrein.

Het gehuurde beschikt over eigen meters ten behoeve van gas, water en elektra. Huurder dient zelf contracten te sluiten met de betreffende leveranciers.

Betalingsverplichting
Per maand vooruit.

Huurtermijn
Een huurtermijn van 5 jaar, telkenmale te verlengen met periodes van 5 jaar. Kortere periodes in overleg.

Opzegtermijn
12 maanden tegen het einde van de huurperiode.

Zekerheidsstelling
Een waarborgsom of bankgarantie ter grootte van 3 maanden huur inclusief servicekosten en BTW.

Aanvaarding
In overleg.

Indexering
Jaarlijkse indexering voor het eerst één jaar na huuringangsdatum op basis van de Consumenten Prijs Index (CPI) Alle Huishoudens (2015=100) samengesteld door het Centraal Bureau voor de Statistiek.

Contract
Standaard ROZ contract, model 2025.

BTW
Indien huurder niet aan het 90% criterium voldoet, zal er van rechtswege sprake zijn van omzetbelasting vrijgestelde verhuur. Alsdan wordt de overeengekomen kale huurprijs exclusief omzetbelasting, zodanig verhoogd dat het voor verhuurder ontstane financiële nadeel wordt gecompenseerd.

Overige
Alle overige voorwaarden zijn nader overeen te komen.

Disclaimer
Alle door EQ Real Estate B.V. verstrekte informatie is geheel vrijblijvend en uitsluitend bestemd voor geadresseerde. Alle gegevens zijn met zorg samengesteld en uit ons inziens betrouwbare bron afkomstig. Ten aanzien van de juistheid ervan kunnen wij echter geen aansprakelijkheid aanvaarden.
Lees meer

Kaart

Plattegronden

Brochure(s)

Vraag meer informatie aan