Konijnenberg 131

4825 BC Breda Verhuurd

Kenmerken

Overdracht

Huurprijs
verhuurd
Status
verhuurd
Aanvaarding
in overleg

Bouw

Hoofdbestemming
bedrijfsruimte
Bouwjaar
2020
Bouwperiode
vanaf 2011 tm 2020

Bedrijfshal

Oppervlakte
69 m²
Voorzieningen
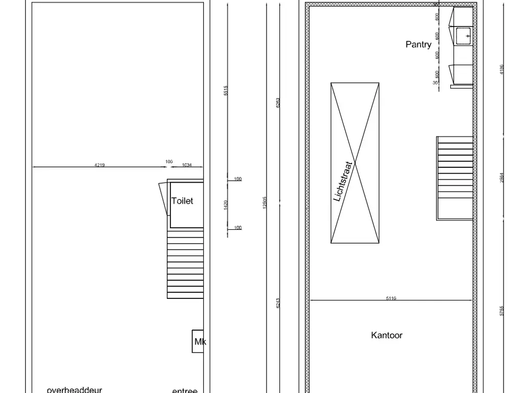
Lichtstraten, overheaddeuren, krachtstroom, heater, toilet, pantry

Kantoorruimte

Oppervlakte
69 m²
Verdiepingen
1

Terrein

Buitenruimte

Ligging
Bedrijventerrein

Omschrijving

Binnen dit representatieve bedrijfsverzamelgebouw komt een turnkey en kwalitatief afgebouwde bedrijfsunit beschikbaar voor verhuur met een totale oppervlakte van circa 138 m2. Het object is onderverdeeld in circa 69 m2 op de begane grond en circa 69 m2 kantoorruimte/showroom op de eerste verdieping.

De bedrijfsunit is van alle denkbare faciliteiten voorzien en op een hoogwaardige manier afgebouwd. De kantoorruimte is voorzien van onder meer een lichtstraat, luxe en volledige pantry en een luxe koel- en verwarmingssysteem. Tevens behoren er twee parkeerplaatsen tot het gehuurde op het buitenterrein.

Interesse? Wij leiden u graag vrijblijvend rond op de locatie.

Locatie
Het object is gelegen op bedrijventerrein ‘De Krogten’ in Breda. Het terrein is uitermate strategisch gelegen langs de Noordelijke Rondweg waarmee de rijkswegen A16 (Antwerpen/Breda/Rotterdam) en de A27 (Breda/Utrecht) binnen enkele autominuten zijn te bereiken. De bereikbaarheid met het openbaar vervoer is uitstekend te noemen.

Bestemmingsplan
Thans is van toepassing het vigerende bestemmingsplan ‘Krogten’ dat werd
vastgesteld bij Raadsbesluit van 7 juni 2006 waaruit blijkt dat de onderhavige locatie de bestemming ‘Bedrijven’ heeft voor bedrijven in milieucategorie 1 tot en met 5 (zone B4).

Kadaster
Volgens de Rijksdienst voor het Kadaster en de openbare registers in Nederland, blijkt uit de kadastrale registratie van het terrein plaatselijk bekend als Konijnenberg 131 te 4825 BC Breda het navolgende:

Gemeente: BREDA
Sectie: C
Nummer(s): 2882
Appartementsrecht: A-18

Opleveringsniveau
Het object wordt in de huidige staat aangeboden:

Bedrijfsruimte
- Volledig betegelde toiletruimte inclusief fontein;
- Meterkast v.v. 1x 380v 16A 5-polige wandcontactdoos;
- Twee glasvezelaansluitingen van Glaspoort en Datafiber;
- Dubbele wandcontactdoos 230V;
- LED-verlichting;
- Automatisch bedienbare overheaddeur met afstandsbediening;
- Uitstortgootsteen v.v. warm- en koud water;
- Afvoerput in de betonvloer;
- Buitenverlichting op bewegingsmelder;
- Elektrische (camera) deurbel/intercom (werkend via internetabonnement huurder);

Kantoorruimte
- Geïsoleerde en gestuukte wanden inclusief ingebouwde WCD’s en aansluitpunten ten behoeve van data;
- Luxe koel- en verwarmingssysteem in de gehele ruimte;
- Voorbereiding t.b.v. glasvezel;
- Systeemplafond met geïntegreerde LED-verlichting;
- Lichtstraat;
- Tapijttegels;
- Luxe en volledige pantry inclusief vaatwasser, combi magnetron-/oven, koelkast, spoelbak en diverse onder- en bovenkastjes;
- Uitbreiding elektra-/datavoorzieningen verdieping kantoor in overleg en door installateur Ton OG Beheer in overleg uit te breiden. Kosten zijn voor de huurder.

HUURVOORWAARDEN

Huurprijs
EUR 1.250,- per maand, te vermeerderen met BTW.

Servicekosten
Het voorschot op de servicekosten bedraagt EUR 50,- per maand, te vermeerderen met BTW, ten behoeve van de navolgende levering van zaken en diensten:
- Klein onderhoud;
- Periodiek onderhoud van het buitenterrein;
- Periodiek onderhoud en keuring van de aanwezige installaties;
- Periodiek onderhoud en keuring van de overheaddeur;
- Periodiek onderhoud en keuring brandvoorzieningen.

Huurder dient zelf contracten af te sluiten voor de nutsvoorzieningen.

Betalingsverplichting
Per maand vooruit.

Huurtermijn
Een huurtermijn van 5 jaar, telkenmale te verlengen met periodes van 5 jaar. Kortere termijnen in overleg.

Zekerheidsstelling
Een waarborgsom of bankgarantie ter grootte van 3 maanden huur inclusief servicekosten en BTW.

Aanvaarding
In overleg.

Indexering
Jaarlijkse indexering voor het eerst één jaar na huuringangsdatum op basis van de Consumenten Prijs Index (CPI) Alle Huishoudens (2015=100) samengesteld door het Centraal Bureau voor de Statistiek.

Contract
Standaard ROZ contract, model 2025.

BTW
Indien huurder niet aan het 90% criterium voldoet, zal er van rechtswege sprake zijn van omzetbelasting vrijgestelde verhuur. Alsdan wordt de overeengekomen kale huurprijs exclusief omzetbelasting, zodanig verhoogd dat het voor verhuurder ontstane financiële nadeel wordt gecompenseerd.

Overige
Alle overige voorwaarden zijn nader overeen te komen.

Disclaimer
Alle door EQ Real Estate B.V. verstrekte informatie is geheel vrijblijvend en uitsluitend bestemd voor geadresseerde. Alle gegevens zijn met zorg samengesteld en uit ons inziens betrouwbare bron afkomstig. Ten aanzien van de juistheid ervan kunnen wij echter geen aansprakelijkheid aanvaarden.
Lees meer

Kaart

Foto's

Brochure(s)

Er is geen brochure gevonden bij dit object.

Vraag meer informatie aan